Our Design Process

We take pride in the process of building relationships with our clients and below is a brief summary to help you better understand our design philosophy and the close collaboration we will have with you to create the home of your dreams.

Your home takes shape

We coordinate with consultants and finalize the design

Permit, drawing and site visits during construction

1. Schematic Design

Clients are expected to be heavily engaged throughout this phase and give continued feedback. The design is fairly complete at the end of this phase but will continue to evolve with minor revisions.

Client Discovery

BUILDING A RELATIONSHIP

We first like to have an introductory meeting to learn about you and your family in order to better understand your needs and the program requirements of your home. The goal is to better understand the way you live and the vision you have for your home. 

We will ask a number of questions to clarify the program elements, size of the home and overall budget so we can create a proposal based on a lump sum fee. This fee is all inclusive and allows us to manage your home from start to finish, giving you the most enjoyable, stress-free experience as possible with the peace of mind that we will oversee the entire process.

Site Analysis

DESIGNED TO FIT WITHIN THE SURROUNDINGS

We will visit the site and gather information to aid in the development of the plan. Such items consist of: a solar study, orientation of the home to maximize views, provide privacy, mitigate noise, and integrate any unique characteristics of the land.

Design

CASE STUDIES: STYLE

Case study images and concepts will give you a visual of what your home could look like. This allows us to discuss massing, materiality and function very early in the design process and get a better feel for your style and expectations.

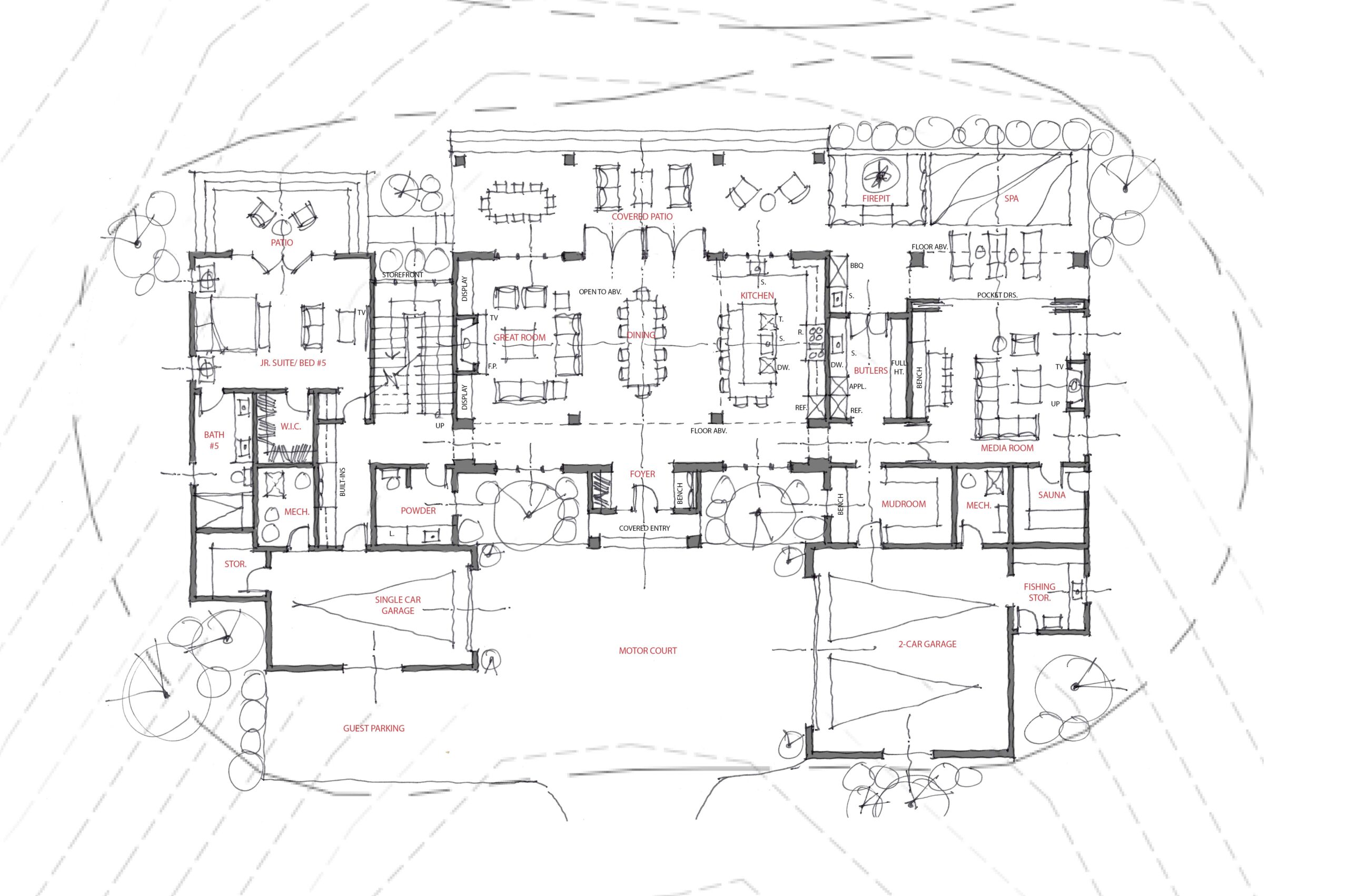
PLAN PRESENTATION: HAND DRAWN

Hand drawn floor plans include rough furniture layout, door and window openings and built-in cabinets. This allows us to discuss the flow of circulation, rough square footages and review the programming and its adjacencies. Site design with rough landscape elements is also presented to aid in the indoor outdoor flow of your home and describes potential views.

PLAN PRESENTATION: DIGITAL

We advance the design and add further detail and dimensional control. Exterior massing studies may be presented as well to help clarify scale, transparency and architectural style.

PHOTOREALISTIC RENDERINGS

Final photorealistic renderings of the exterior of the home depicting all the exterior materials, door and window configurations and schematic landscaping using the specific site photo for context.

2. Design Development

This phase is primarily early documentation and coordination with outside consultants to ensure their design expertise is integrated into the home and works holistically. We will inform you on consultant progress and may present design options from the consultants for approval. We will make recommendations and educate you about the options throughout this process to make sure you understand the form and functionality.

Virtual Walk-Thru

3D PRESENTATION OF THE INTERIORS

We will walk you through the interior of the home using our BIM software which allows you to visualize each space and get a better sense of scale.

We use the latest technology and place your home within a 3D context image taken at the site so we can maximize the views from all the interior spaces.

Consultant Coordination

PROPOSALS

We will request proposals and help inform the client. Consultants may include Structural Engineer, Civil Engineering, Landscape Architect, Mechanical Engineer and Interior Designer.

HOA Documentation

SUBMIT FOR APPROVAL: IF APPLICABLE

Coordinate with the consultants to package a set of plans to meet the HOA’s design requirements in order to obtain approval. This set of plans can be used for early bids and signing up a contractor.

3. Construction Documents

Little involvement from the client is needed during building permitting – except patience. It’s our goal to move the plans through permitting as quickly as possible but this is highly dependent on the local jurisdiction and timing can vary depending on their capacity, complexity of the project and any special reviews.

Permitting

COMPLETE SET OF PLANS

These drawings are the instruments we use to communicate to the contractor and we pride ourselves on having a very complete set of plans with a high level of detail. This ensures the design intent is maintained and also saves you time and money during construction.  

Construction Administration

SITE VISITS

The frequency of site visits will depend on the project, but keeping an eye on work performed and continued communication during construction is key in proactively addressing potential issues and confirming workmanship and progress is meeting everyone’s expectations. Photos and written reports will be logged to document the progress and keep you informed throughout the process.

182 Lincoln St.
Twin Falls, ID 83301

P: 208.818.6040

tyler@twilsonarch.com